Dove Siamo
info@azperasole.com
preventivi@azperasole.com
Telefono + 39 081 738 53 64
Telefono +39 081 737 40 37
Fax +39 081 737 37 96
Whatsapp +39 348 381 20 66
Stabilimento Di Casoria:



© 2020 A.Z. PERASOLE s.r.l. P.I. 03233250616. All Rights Reserved.
website created by PIERMEGLIO

New Idra è una porta tagliafuoco flessibile e sicura, che risponde alle esigenze di compartimentazione di abitazioni, supermercati, ospedali, magazzini, locali macchine, cinema, ristoranti e qualsiasi altro edificio pubblico. Idonea a varchi di medie dimensioni tipiche di porte a 1 e 2 battenti, New Idra combina in un giusto equilibrio differenti caratteristiche, che la rendono una delle chiusure tagliafuoco più diffuse. Grazie alla facilità di posa, senza forature aggiuntive o scantonature nel muro, si adatta ad ogni spazio con estrema versatilità. La complanarità al profilo del telaio, le zanche prestampate nel telaio stesso e la chiusura con 3 cerniere garantiscono massima funzionalità. Inoltre, è disponibile in una vasta gamma di colori e dimensioni, sia standard che fuori misura, in versione cieca, con la robustezza tipica dell’acciaio, e nella versione vetrata, con differenti opzioni di finestrature. New Idra è disponibile anche in versione antipanico o con maniglia/maniglia e protezione superficiale, con pellicola da asportare dopo la posa.
New Idra è certificata e omologata per la resistenza al fuoco secondo la norma europea EN 1634, rilasciata in seguito a test specifici che garantiscono la conformità ai rigorosi standard. Certificazione EI2 60 e 120. Il termine “EI” sigla la capacità di un prodotto di conservare, di fronte all’attacco del fuoco, alcune caratteristiche per un tempo stabilito: 60 oppure 120 minuti. Ogni lettera si riferisce a una diversa caratteristica. La E indica la tenuta, quindi non produrre né lasciare passare fumo e fiamme. La I sta per isolamento termico, cioè la capacità di ridurre la trasmissione del calore. Di conseguenza, si definisce “E” una porta che conserva la propria stabilità ed è in grado di bloccare fumi caldi e fiamme e “EI” un prodotto che, oltre alle qualità precedenti, limita la trasmissione del calore fino a un massimo di 180°C sul lato non a contatto diretto con il fuoco (ovvero lato freddo). Per ogni prodotto e accessorio, la validità della certificazione nei diversi paesi europei è soggetta a verifica presso l’ufficio tecnico Dierre.



Telaio a Murare
Telaio a Murare
Telaio a Tassellare
Telaio a Tassellare
Telaio Su Controtelaio
Telaio Su Controtelaio



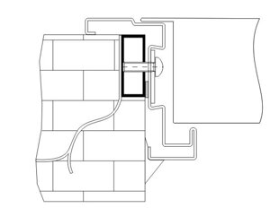
Telaio Su Mazzetta VISUAL a "L"
Telaio Su Mazzetta VISUAL a "L"
Telaio Su Mazzetta VISUAL a "T"
Telaio Su Mazzetta VISUAL a "T"
Telaio su Parete Di Cartongesso EI 120
Telaio su Parete Di Cartongesso EI 120


Dove Siamo
info@azperasole.com
preventivi@azperasole.com
Telefono + 39 081 738 53 64
Telefono +39 081 737 40 37
Fax +39 081 737 37 96
Whatsapp +39 348 381 20 66
Stabilimento Di Casoria:
© 2020 A.Z. PERASOLE s.r.l. P.I. 03233250616. All Rights Reserved.
website created by PIERMEGLIO