Dove Siamo
info@azperasole.com
preventivi@azperasole.com
Telefono + 39 081 738 53 64
Telefono +39 081 737 40 37
Fax +39 081 737 37 96
Whatsapp +39 348 381 20 66
Stabilimento Di Casoria:

© 2020 A.Z. PERASOLE s.r.l. P.I. 03233250616. All Rights Reserved.
website created by PIERMEGLIO
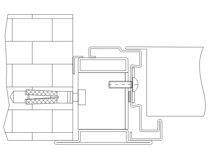
Chiusura tagliafuoco ad uno e due battenti, 3 lati, in acciaio rivestita in legno, misure d’ordine in vano muro. New Sigla è una soluzione che risponde perfettamente alle esigenze di abitazioni, edifici pubblici, ristoranti, cinema ovunque ci sia l’esigenza di unire la compartimentazione antincendio all’eleganza del legno; grazie alla funzionalità ai molti accessori disponibili e alle sue qualità isolanti. New Sigla è la porta in ferro/legno, che coniuga stile ed eleganza sottolineando il futuro. Chiusura con Omologazione di resistenza al fuoco secondo UNI EN 1634-1, è anche certificata in molti stati dell’area europea, con accessori e caratteristiche tecniche di serie come da nostra produzione. Telaio a Z su 3 lati in acciaio verniciato colore testa di moro a polveri epossipoliestere, con zanche o fori per tasselli, guarnizione autoespandente fumi caldi, 3 cerniere di serie, di cui una registrabile in altezza su sfera in acciaio verniciato, e 2 per l’autochiusura con molla elicoidale di torsione incorporata nella cerniera. Battente cieco realizzato con lamiere elettrozincate, coibentazione ad alta densità, serratura ad infilare a 1 punto di chiusura con cilindro Yale con n. 3 chiavi Yale, maniglieria antinfortunistica (maniglia/maniglia) su placca in resina colore nero opaco, opzione con maniglieria e/o maniglione antipanico, carenature perimetrali in tinta come il telaio, soglia mobile inferiore automatica e guarnizione fumi freddi di serie su telaio, installazione in ambienti interni non esposti al sole e/o pioggia su parete in laterizio, apertura vista dall’interno a spingere, completa di : rivestimento esterno liscio 7 mm in truciolare impiallacciato tanganica tinto, rivestimento interno liscio 7 mm in truciolare impiallacciato tanganica tinto, a scelta impiallaciati in altre essenze. Spessore battente senza rivestimento 65 mm , spessore battente compreso i rivestimenti 80 mm, spessore totale battente + telaio 90 mm. Opzioni: telaio a tassellare consigliato per muri in cemento o di pregio storico, maniglieria e/o maniglione antipanico, chiudiporta, elettromagneti , finestrature rettangolari, ed elettromaniglia per controllo accessi, disponibile fuori misura

Porta Tagliafuoco Rivestita NEW SIGLA
Porta Tagliafuoco Rivestita NEW SIGLA




Telaio a Murare
Telaio a Murare
Telaio a Tassellare
Telaio a Tassellare
Telaio Su Mazzetta VISUAL a "L"
Telaio Su Mazzetta VISUAL a "L"
Telaio Su Mazzetta VISUAL a "T"
Telaio Su Mazzetta VISUAL a "T"


Dove Siamo
info@azperasole.com
preventivi@azperasole.com
Telefono + 39 081 738 53 64
Telefono +39 081 737 40 37
Fax +39 081 737 37 96
Whatsapp +39 348 381 20 66
Stabilimento Di Casoria:
© 2020 A.Z. PERASOLE s.r.l. P.I. 03233250616. All Rights Reserved.
website created by PIERMEGLIO